Inmobiliaria

Llopart Inmobiliaria

Ubicación

PERÚ Y AV. SARMIENTO - EDIFICIO AAA, Capital Mendoza

Precio

USD15.000

Información de la propiedad

ID# 4335-3097
Tipo de construcción Oficina
Condición Alquiler
Superficie Total m2 1500
Superficie Cubierta m2 1000
Baños 7
Plantas 3 Plantas
Estado de Conservación Excelente

Descripción

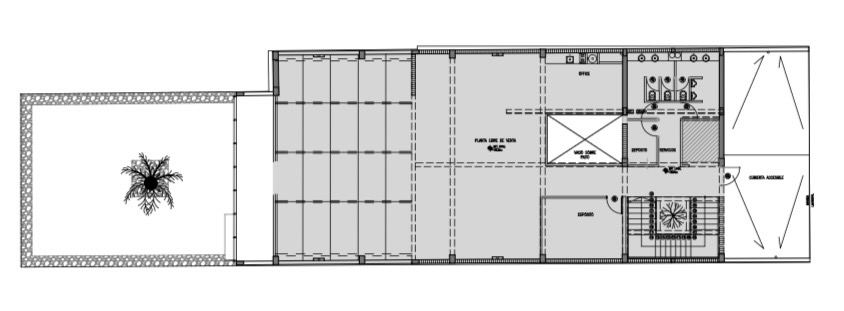
EDIFICIO AAA DE OFICINAS Y LOCAL COMERCIAL.
- DE DISEÑO CONTEMPORÁNEO, CALIDAD CONSTRUCTIVA, DETALLADAS TERMINACIONES, FLEXIBILIDAD EN EL USO DEL ESPACIO INTERIOR ( PLANTAS LIBRES ), EXTENSO PATIO OASIS EN PLANTA BAJA Y AMPLIAS TERRAZAS CON VISTAS EN PISOS SUPERIORES.
- UBICACIÓN PRIVILEGIADA, CON ACCESO A COMERCIOS, RESTAURANTES, HOTELES, TEATROS, MUSEOS, PLAZAS Y SERVICIOS.
- PLANTA BAJA: HALL ACCESO JERARQUIZADO, 350 MTS PLANTA LIBRE, ZOCALO SANITARIO Y SERVICIOS. PATIO OASIS.-
- PRIMER PISO: 350 MTS PLANTA LIBRE, ZOCALO SANITARIO Y AMPLIA TERRAZA.
- SEGUNDO PISO: 300 MTS PLSNTA LIBRE, ZOCALO SANITARIO Y AMPLIA TERRAZA.
ASCENSOR ÚLTIMA GENERACIÓN.

CANON MENSUAL: USD 15.000 + IVA.-
EN IMÁGENES SE ADJUNTA PLANIMETRÍA.

Ubicación